Welcome to A+UD
A+UD is a Collaborative Architectural Practice situated in Lucknow, Uttar Pradesh, India. Founded in 2018, We are committed to pursuing collaborations that align with our values, principles, and unwavering dedication to putting the Project First. We focus on creating livable, sustainable, and vibrant communities by prioritizing human-centric design, irrespective of the size and scale of the project. We specialize in handling large scale projects like Hotels, Resorts, Industrial Setups, Housing and Institutions etc.















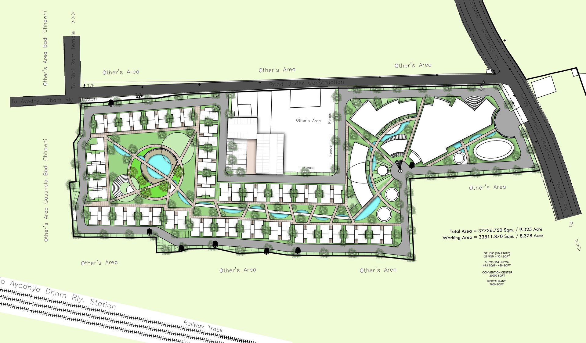
We have been blessed to have handled some prestigious projects in the last couple of years, like Navodaya Vidyalaya (Karnataka), Bardibas Resort (Nepal), Intimate Flexipack Pvt Ltd. (Varanasi), Jeevandeep Institute of Nursing and Paramedical Sciences (Bhadohi) etc.
our latest works..
“Design creates culture. Culture shapes values. Values determine the future.” - Robert L. Peters


Our Growth
Our growth story is a testament to the trust and confidence you have placed in us.
Project Completed
+
Happy Clients
+
+
Team Members
Ongoing Projects
+
“Design is not just what it looks like and feels like. Design is how it works.” - Steve Jobs


What we are good at!
Being experts in our services means that we have a deep and comprehensive understanding of our field. It signifies that we possess the knowledge, skills, and experience necessary to excel in what we do.
Spatial Design
Concept Idea development focused on elevating the experiences of the designed spaces.
Architectural Consultancy
Professional drawings & allied Services for all your execution needs.
Interior & Landscape
Colors to palette, materials to finishes, hardscapes to soft-scape, every detail is catered to.
Like our approach?? Collaborate with us.
Let’s collaborate to bring your vision to life. Share your project idea and aspirations with us, and let’s begin crafting spaces that reflect your story, inspire emotion, and leave a lasting impression. Reach out today to start the conversation.
Begin a journey of creativity, innovation, and design excellence.














































